3LDKの間取り、「部屋数」より「動線」で決める|後悔しない設計術【実例アリ】
2026.1.7.
- 注文住宅
本記事では、ファミリーに人気の3LDKの間取りで後悔しないための基本的な考え方から、具体的な設計ポイントなどを詳しく解説します。間取りの実例も紹介しますので、家族の未来を見据えた「本当に住みやすい家」を実現するためのヒントとしてぜひお役立てください。
注文住宅で3LDKを選ぶ前に知っておきたい基礎知識
3LDKとは?間取りの基本構成と一般的な広さ
3LDKとは、リビング・ダイニング・キッチン(LDK)に加え、3つの居室を持つ間取りのことです。注文住宅においては、延床面積25坪〜35坪(約80㎡〜115㎡)程度で設計されるケースが一般的です。この坪数の中に必要な機能をどう配置するかが、設計の腕の見せ所といえます。
25坪であればコンパクトにまとまった効率的な空間に、35坪あれば収納や各居室にゆとりを持たせた設計が可能です。予算や土地の条件に合わせて、単なる広さだけでなく「空間の質」を重視して選ぶのがおすすめです。
注文住宅の3LDKが向いている家族構成
3LDKは、夫婦と子ども1〜2人の3〜4人家族によく選ばれる間取りです。子ども部屋を確保しつつ、主寝室もしっかりと設けられるため、子育て世帯にとってバランスの良い間取りといえます。
また、夫婦2人暮らしの場合でも、将来を見据えて選ばれることが多いです。例えば、1部屋を在宅ワーク用の書斎や趣味の部屋として使い、将来子どもが生まれたら子ども部屋にする、といった使い方も可能です。
「現在の家族構成」だけでなく、5年後、10年後のライフスタイルの変化まで想像して設計すると、長く快適に暮らせる住まいになります。
なぜ「普通の3LDK」では失敗するのか?よくある3つの後悔パターン
「部屋数さえあればOK」という思い込み
「とりあえず6畳の子ども部屋があれば安心」と考えがちですが、これには注意が必要です。部屋の形状や窓の位置、クローゼットの扉の開き方によっては、学習机やベッドがうまく配置できないケースがあるからです。「部屋数」や「畳数」だけを満たしても、使い勝手が良いとは限りません。
重要なのは、そこに置きたい家具や家電を具体的にイメージし、そこから逆算して部屋の形を決めることです。注文住宅であれば、設計段階で家具のレイアウトまでシミュレーションできるため、入居後の「置けない」というトラブルを未然に防ぐことができるでしょう。
LDKの広さ優先で生活動線が犠牲に
広いリビングは憧れですが、LDKの広さを最優先にするあまり、水回りが遠くなったり、必要な収納が削られたりすることがあります。特に共働き世帯にとって、キッチンから洗面所への動線が悪いと、毎日の家事負担が増え、生活の質が下がってしまう原因になりかねません。
図面上では広く見えても、実際に生活してみると「片付かない」「移動が面倒」と感じてしまうのはもったいないことです。見た目の開放感よりも、実際の家事動線や生活動線を優先し、スムーズに回れる空間づくりを意識するのがおすすめです。
採光・通風の軽視が生む「暗くて湿気る部屋」問題
3LDKの配置によっては、北側の部屋の日当たりが悪く、湿気がこもりやすくなる失敗例も少なくありません。特に密集地では、隣家との距離が近く、十分な採光が得られないこともあります。「部屋を作ること」に意識が向きすぎると、こうした環境面が見落とされがちです。
これを防ぐには、窓の配置を工夫したり、高窓や天窓を活用して光を取り込んだりする設計が効果的です。また、夏の風の通り道を計算して窓を配置することで、湿気を逃がしやすくなります。敷地の条件に合わせて窓の位置や大きさを最適化できるのは、注文住宅ならではのメリットです。
注文住宅の3LDKで押さえたい3大設計原則
「可変性」の確保|ライフステージ変化に対応できる柔軟な設計
家族の形は時間とともに変化します。子どもが小さいうちは広い一部屋として使い、成長に合わせて間仕切り壁で2部屋に分割できるようにしておくなど、可変性を高めた設計がおすすめです。また、子どもが独立した後には、再び壁を取り払って趣味の部屋として使えるようにするのも良いでしょう。
こうした変更をスムーズに行うためには、新築時に将来壁を作るための「下地」を入れておいたり、コンセントをあらかじめ2系統用意しておいたりすることが重要です。数万円の先行投資をしておくことで、将来のリフォーム費用を大幅に抑えることができ、長く住み続けられる家になります。
「家事動線」の最適化|毎日5分の短縮が人生を変える
毎日の家事時間を短縮するためには、動線の最適化が欠かせません。例えば、「洗う・干す・畳む・しまう」という洗濯の一連の作業を最短距離で完結できるよう、ランドリールームとファミリークローゼットを直結させる配置が人気です。
また、料理をしながら洗濯やお風呂の準備ができるよう、キッチンを中心に水回りを回遊できる動線にするのも効果的です。共働きや子育て中など、それぞれの家庭の生活リズムに合わせてゼロから動線を設計すれば、日々のストレスを大きく軽減できるでしょう。
「つながりと個の両立」|家族の気配と一人の時間の絶妙なバランス
家族とのコミュニケーションを大切にしつつ、それぞれのプライベートな時間も確保したいものです。リビング階段を採用すれば、帰宅した家族と自然に顔を合わせる機会が増え、会話が生まれやすくなります。
親が家事をしながら子どもの勉強を見守れるスタディコーナーを設けるなど、「程よい距離感」を保てる設計もおすすめです。寝室とリビングの位置関係を工夫したり、防音設計を取り入れたりするなど、音の問題にも配慮した快適な住環境を叶えましょう。
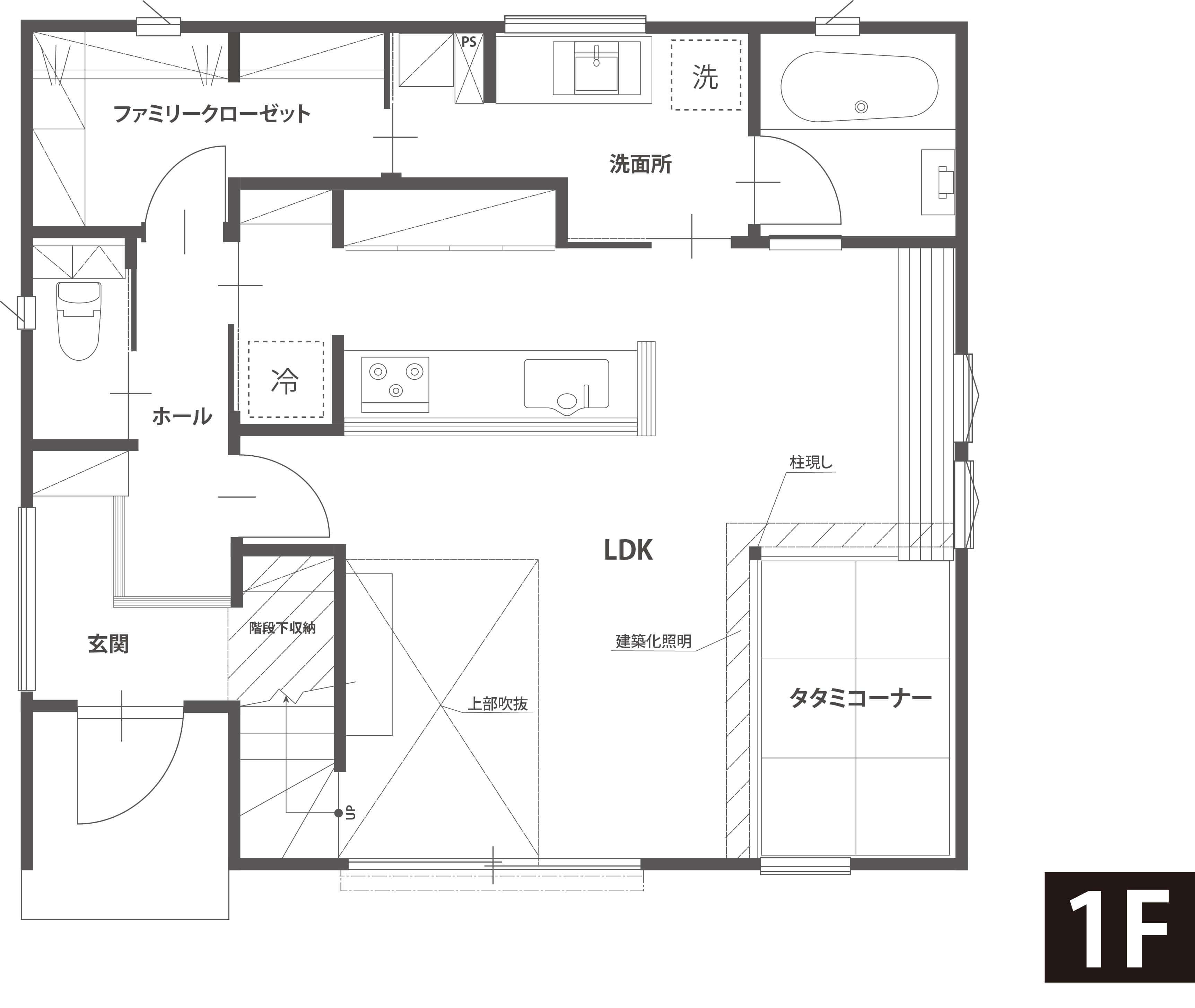
理想のライフスタイルを叶える3LDKの間取り実例
1階・2階ともに大型収納を完備!片付けストレスゼロの家
来客時も安心の2WAY玄関と将来を変えられる可変型プラン
買い物動線が神!パントリーと書斎のある回遊プラン
洗濯家事を劇的時短!収納を集約したファミリーWICのある家
「マルチスペース」が暮らしを変える!家事と収納の連携プラン
帰宅後のルーティンが整う動線と夫婦で使い分けられるWICのある贅沢プラン
3LDK「平屋」vs「2階建て」|決断の判断軸
平屋3LDKのメリット・デメリットと向いている人
平屋の最大の魅力は、階段の上り下りがない安全性と、ワンフロアで生活が完結する家事動線の良さです。家族のコミュニケーションが取りやすく、老後もバリアフリーで安心して暮らせます。
一方で、2階建てよりも広い土地が必要になり、また基礎や屋根の面積が増えるため坪単価が高くなる傾向があります。
平屋の3LDKは、土地の広さに余裕があり、家族の一体感を重視する方や、老後の暮らしやすさまで見据えて家づくりをしたい方に適しています。
2階建て3LDKのメリット・デメリットと向いている人
2階建ては、限られた敷地面積でも十分な床面積を確保できるのがメリットです。1階をLDK、2階を寝室などのプライベート空間とすることで、生活のオンオフを切り替えやすく、プライバシーも守りやすくなります。建築コストも平屋に比べて抑えやすいのも特徴です。
ただし、階段の移動が負担になることや、家事動線が縦に長くなる点は考慮が必要です。都市部や狭小地で家を建てる方、コストを抑えつつ広さを確保したい方に向いています。
1階リビングvs2階リビング|それぞれの選択理由
2階建ての場合、リビングを何階にするかも重要な選択です。1階リビングは庭とのつながりを感じられ、帰宅した家族と顔を合わせやすいのが特徴です。一方、2階リビングは日当たりや眺望が良く、外からの視線を気にせずくつろげるメリットがあります。
判断の基準となるのは、敷地の日当たり条件や周辺環境です。住宅密集地で1階の日当たりが期待できない場合は、2階リビングにすることで明るく開放的なLDKを実現しやすくなるでしょう。現在のライフステージだけでなく、将来の暮らし方も考慮して選ぶことが大切です。
注文住宅だから実現できるこだわりの3LDK設計
回遊動線のある3LDK|家事効率を極限まで高める設計
キッチンを中心に行き止まりのない「回遊動線」を作ると、家の中の移動がスムーズになり、家事効率が劇的にアップします。例えば、キッチンから洗面所、廊下、リビングへとぐるりと回れる設計なら、忙しい朝の身支度や家事もストレスなくこなせるようになります。
ただし、単に回れれば良いわけではありません。重要なのは「毎日通るルート」が最短になることです。共働きで家事時間を少しでも短縮したい方や、来客時にプライベートな空間を見せずに移動したい方にとって、回遊動線は非常に有効な設計手法といえます。
スキップフロアのある3LDK|空間を立体的に最大活用
スキップフロアとは、床の高さを半階ずらして設ける空間のことです。1.5階のような中間層を作ることで、床面積に含まれない収納スペースを生み出したり、視覚的な広がりを持たせたりすることができます。限られた面積を立体的に活用できるのが大きな魅力です。
段差を利用して子どもの遊び場やスタディスペース、あるいはご主人の書斎を作るなど、使い方は様々です。変化に富んだ楽しい空間を作りたい方や、狭小地でもできるだけ生活スペースを確保したいご家族におすすめです。
中庭(コートハウス)のある3LDK|採光とプライバシーの両立
建物で囲まれた中庭(コートハウス)を設けると、外からの視線を気にすることなく、カーテンを開け放って暮らせる開放的な住まいが実現します。中庭に向けて大きな窓を配置すれば、家の隅々まで自然光を届けることができ、風通しも抜群に良くなります。
特に、周囲を家に囲まれた都市部や住宅街では、プライバシーと採光の両立が難しい課題となりがちです。中庭のある3LDKなら、自分たちだけのプライベートな屋外空間を確保しつつ、明るく健康的な暮らしを楽しむことができるでしょう。
契約前に絶対チェック!3LDK設計の見落としがちポイント5選
①収納は「量」ではなく「場所」と「使いやすさ」
収納計画で失敗しないコツは、単に面積を確保するだけでなく、「どこで何を使うか」を考えることです。掃除機や季節家電、アウトドア用品など、具体的なモノの定位置が決まっているかを確認しましょう。子どもの成長で荷物は確実に増えるため、「今必要な量+20%」を目安にしておくと安心です。
また、奥行きがありすぎる収納は、奥のものが取り出しにくくデッドスペースになりがちです。各部屋のクローゼットに加え、廊下収納やパントリー、土間収納などを分散して配置することで、家中が自然と片付く使いやすい収納になります。
②個室の広さは「均等」より「用途別最適化」
「子ども部屋は2つとも同じ6畳で」と考えがちですが、全ての個室を同じ広さにする必要はありません。近年は、LDKを広く取る代わりに、子ども部屋は4.5畳〜5畳程度に抑えるケースも増えています。主寝室はベッドのサイズに合わせて8〜10畳確保するなど、用途に合わせてメリハリをつけることが大切です。
ただし、LDKを広くしすぎて個室が極端に狭くなり、ベッドと机が入らないといった失敗には注意が必要です。図面に家具を書き込み、実際に配置できるかどうかをシミュレーションすることで、「広さ」よりも「使いやすさ」を優先した無駄のない設計になります。
③コンセント・照明は「家具配置」前提で計画
コンセントの位置や数は、家具の配置が決まっていないと失敗しやすいポイントです。「ベッドを置いたらコンセントが隠れてしまった」「ダイニングテーブルの向きを変えたら照明の位置がズレた」といったことがないよう、具体的な生活シーンを想定して計画しましょう。
特に在宅ワークをする書斎や、家電が増えがちなキッチン周りは、多めにコンセントを設けておくと便利です。配線の増設は後から行うのが難しくコストもかかるため、設計段階で念入りに検討し、少し余裕を持たせておくことをおすすめします。
④音の伝わり方|防音・遮音の事前シミュレーション
間取り図では分かりにくいのが「音」の問題です。「寝室の上に子ども部屋を配置したら足音が響く」「リビング横の寝室はテレビの音が気になって眠れない」といった悩みはよく聞かれます。生活時間の異なる家族がいる場合は、特に配慮が必要です。
在宅ワーク用の部屋は生活音の発生源から離れた場所に配置する、寝室は静かなゾーンに設けるなど、音の伝わり方をシミュレーションしておきましょう。注文住宅なら、壁に防音材を入れるなどの対策も可能なため、音環境まで考慮した快適な家づくりが叶います。
⑤将来の間取り変更の「逃げ道」は残せているか
家づくりでは、「変えられる部分」と「変えられない部分」を把握しておくことが重要です。構造上、将来的に壁を撤去できるのか、配管や配線の変更は可能なのかを設計士に確認しておきましょう。将来の部屋分割を想定するなら、下地やドアの位置への配慮も必要です。
子どもが巣立った後に広々とした空間にリフォームしたいと思っても、構造壁(耐力壁)であれば撤去できない場合があります。構造計算の段階で「将来の可変性」を要望として伝え、ライフスタイルの変化に対応できる「逃げ道」を残しておくと安心です。
理想の3LDKを実現するための3ステップ実践ガイド
STEP①|間取り図の前に「暮らしのシナリオ」を描く
いきなりあれこれ間取り図を見始めるのではなく、まずは自分たちの「暮らしのシナリオ」を書き出してみましょう。「平日の朝、誰がどこで何をしているか?」「休日はどこで過ごしたいか?」「10年後の家族はどうなっているか?」など、具体的なシーンを想像することが大切です。
このシナリオを設計士に伝えることで、単なる部屋のパズルではない、家族の生活に寄り添った本当に必要な間取りが見えてきます。家族全員でこのシナリオを共有し、お互いの価値観をすり合わせておくことが、満足度の高い家づくりへの第一歩です。
関連記事:注文住宅の間取りは『家族の未来図』から描く。後悔ゼロのアイデア・成功例をプロが公開
STEP②|制約条件の中で優先順位を明確化する
予算や敷地の条件には必ず限りがあります。その中で全ての希望を叶えるのは難しいため、要望に優先順位をつけましょう。「絶対に譲れないもの」「できれば欲しいもの」「なくても困らないもの」の3段階に整理するのがおすすめです。
この優先順位が明確であれば、何かを諦めなければならない時も納得して決断でき、後悔を防ぐことができます。注文住宅は自由度が高いからこそ、「何を選び、何を捨てるか」という制約の中での最適解を見つける思考が、成功の鍵となります。
STEP③|複数案を比較し「なぜ?」を理解しながら修正
提案されたプランが一つでも、すぐに決定せず、複数のパターンを比較検討することをおすすめします。図面だけではイメージしにくい空間の広がりや採光などは、3Dパースや模型を見せてもらうことで、より実際の生活に近い感覚で確認できます。
また、「なぜここの窓はこの位置なのか?」「なぜこの動線なのか?」と、設計士に意図を質問してみてください。プロの設計意図を理解することで、その間取りのメリット・デメリットを深く納得でき、自分たちの暮らしに合わせてより良く修正していくことができるでしょう。
まとめ
3LDKは汎用性が高いからこそ、家族ごとのライフスタイルに合わせた「カスタマイズ」が住み心地を大きく左右します。部屋数や広さといった数字にとらわれず、実際の生活動線をシミュレーションし、「自分たちにはどの配置が使いやすいか」を具体的にイメージすることが、後悔しない家づくりのポイントです。
ポラテックの「発見とちいえプラザ」では、土地探しから設計、施工、そして資金計画まで、家づくりをトータルでサポートしています。お客様一人ひとりの暮らし方やご希望をじっくりとヒアリングし、毎日がもっと快適になるこだわりの3LDKをご提案しますので、ぜひお気軽にご相談ください。
SUPERVISOR
監修者


